Bibliotequita con lámpara
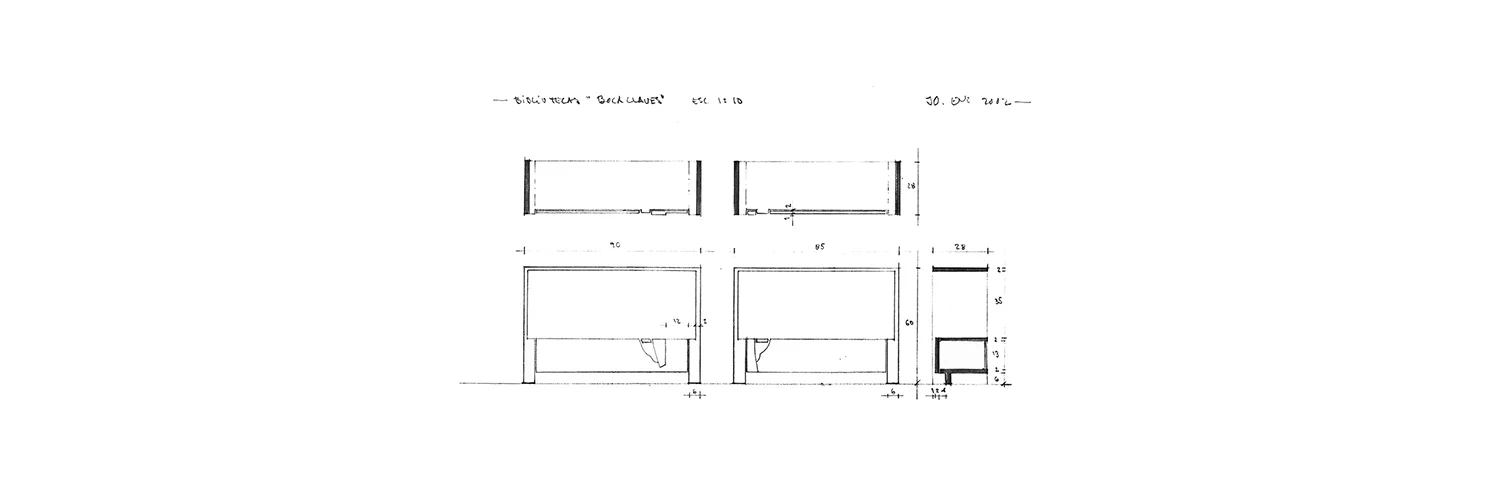
Biblioteca Bocallaves - 2002
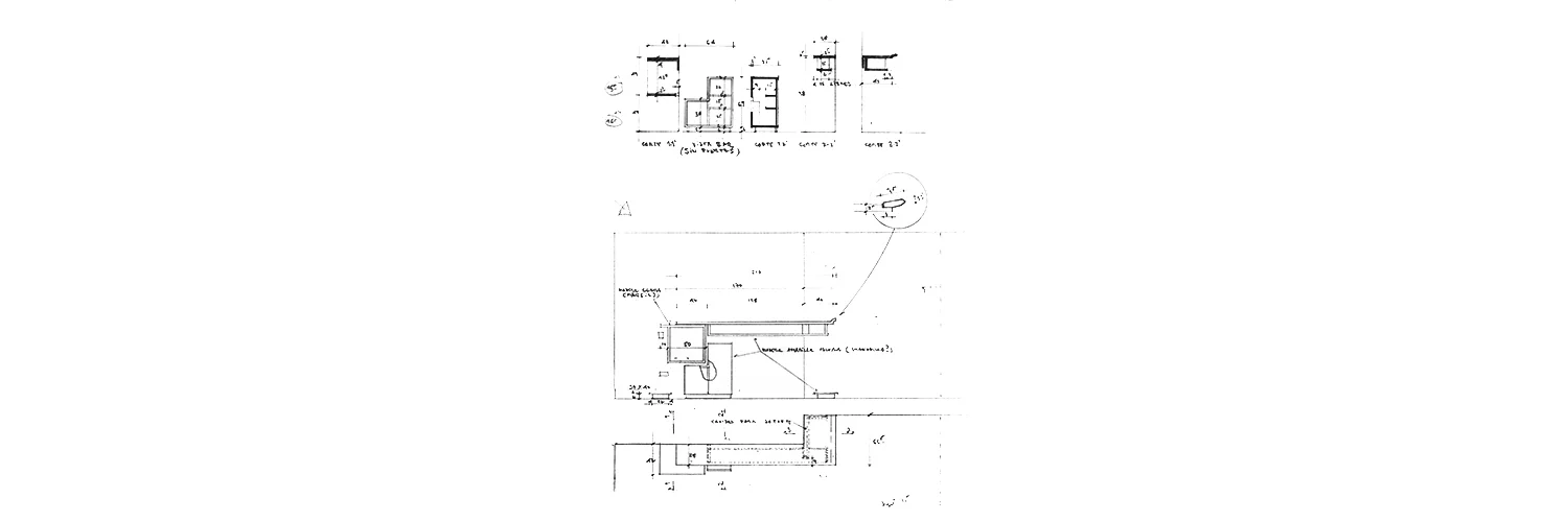
Biblioteca Reclinada
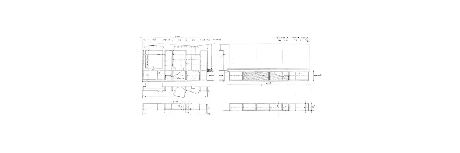
Biblioteca Claudia Bonnet - 1993
Biblioteca Juan Manuel García - 1996
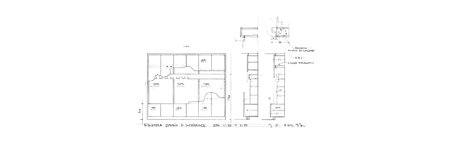
Biblioteca Margarita Gutiérrez - 1997
Biblioteca Rosario Jaramillo - 1982
Biblioteca Moca de Rhodes - 2007
Biblioteca remendada - 1997
Bibliotecas Marcel Gaviria
Biblioteca Mónica Giraldo
