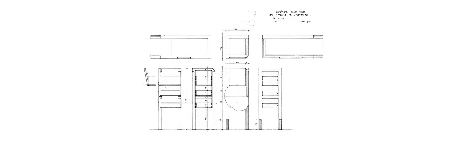
Gabinete hi-tech con babero de abotonar - 1986
Joyero Luz Myriam Toro - 1992
Piano - 1988
Bar Luz Myriam Toro - 1988
Bar de vidrio - 1981
Aparador Susana de Serrano - 1988
Aparador 3 chanchitos - 1999
Mueble exhibición Villgas editores
vitrina 1 y 2 para Ángela Caicedo
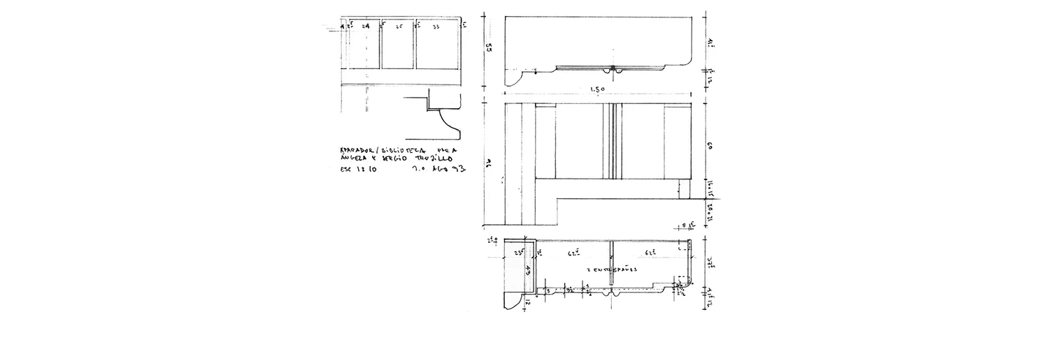
Aparador Ángela y Sergio Trujillo - 1993
Aparador Jorge Alberto Jiménez y Cristina Álvarez - 1997
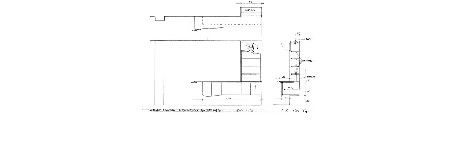
Aparador Margarita Gutiérrez - 1997
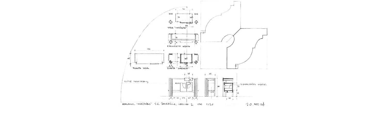
Aparador Mariposas - 2004
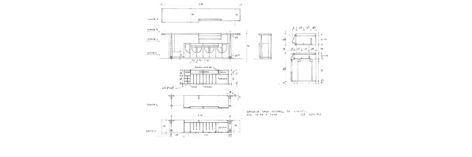
Aparador Michael de Rhodes - 1990
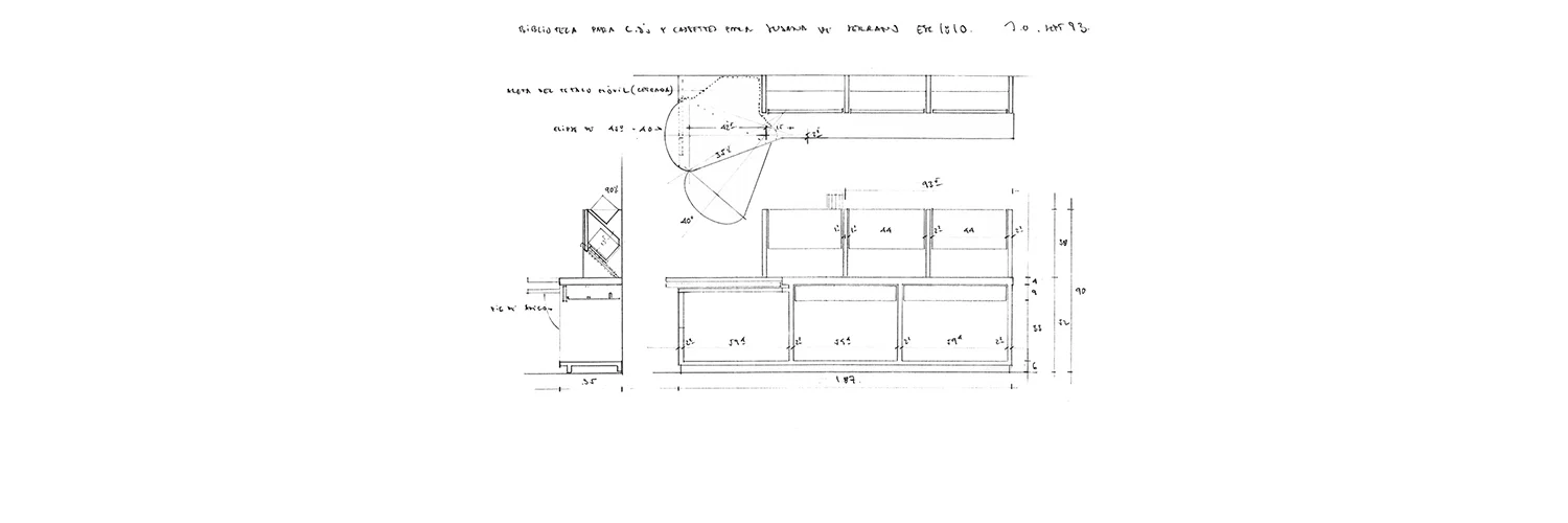
Aparador Pétalos - 1993
Archivador CDs - 1995
